Bạn có thể chuyển sang phiên bản mobile rút gọn của Tri thức trực tuyến nếu mạng chậm. Đóng

Ngôi nhà 20 năm tuổi trên mảnh đất hình tam giác

Công trình được cải tạo từ ngôi nhà 20 năm tuổi tại Gò Vấp (TP.HCM), có thiết kế đặc biệt trên mảnh đất hình tam giác vuông.

Nhung mau thiet ke nha dep anh 1

Chủ nhân ngôi nhà là một gia đình gốc Bắc vào Nam lập nghiệp. Sau 20 năm, ngôi nhà hiện trạng đã xuống cấp. Cô con gái đã trưởng thành muốn cải tạo lại ngôi nhà để làm nơi thư giãn nghỉ ngơi cho bố mẹ.

Nhung mau thiet ke nha dep anh 2

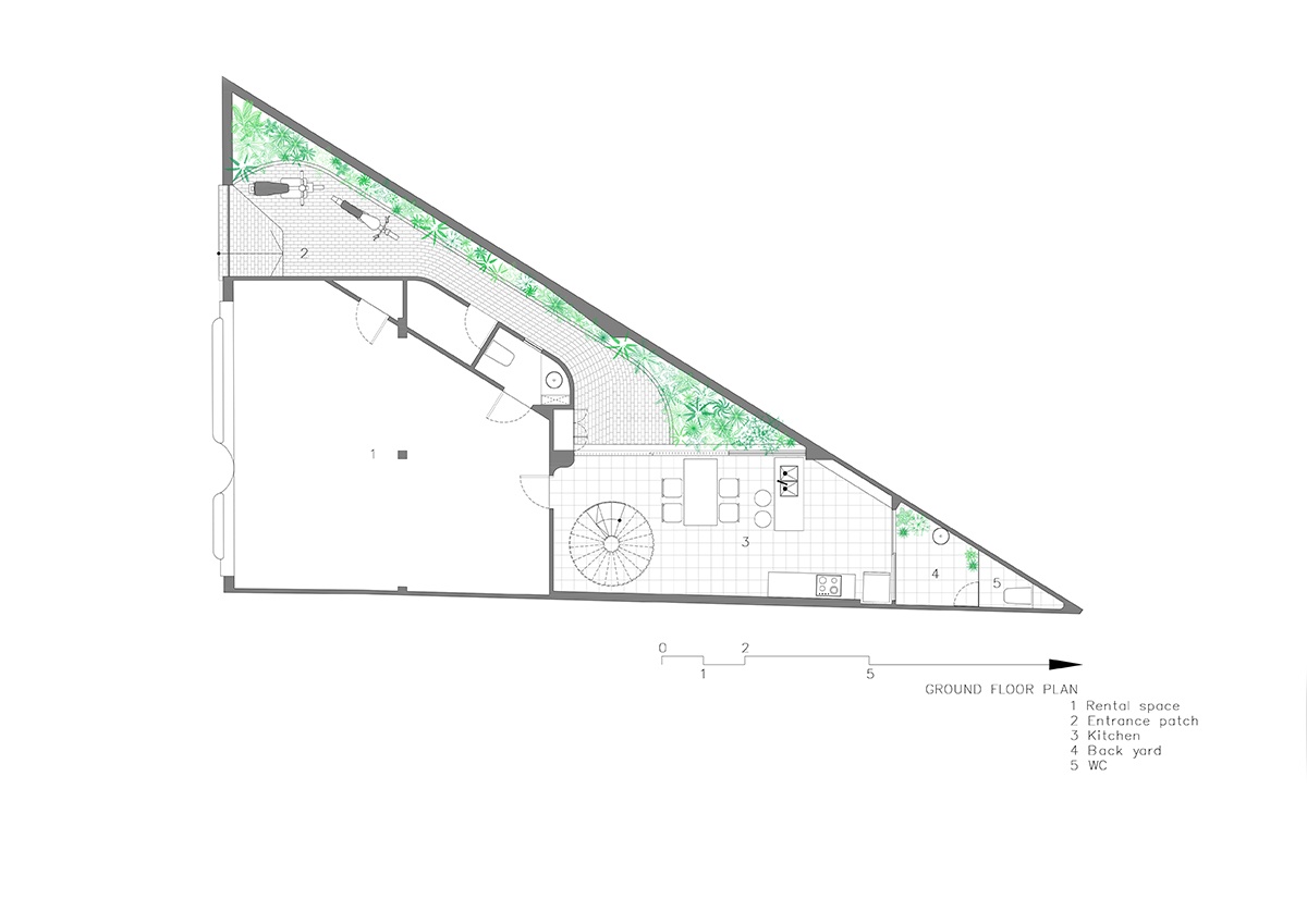
Khu đất có hình dáng tam giác đặc biệt. Nhưng chính điều tưởng như bất lợi này đã trở thành ý tưởng thiết kế của H.a workshop.

Nhung mau thiet ke nha dep anh 3

Lối vào của ngôi nhà rất hẹp do nằm ở một góc của tam giác.

Nhung mau thiet ke nha dep anh 4

Không gian mở rộng hơn khi tiến vào sâu bên trong.

Nhung mau thiet ke nha dep anh 5

Cầu thang xoắn vừa có tác dụng trang trí về hình thức, vừa để tiết kiệm diện tích cho những ngôi nhà nhỏ.

Nhung mau thiet ke nha dep anh 6

Căn bếp của Gò Vấp House (tên ngôi nhà) có hệ tủ bếp được xếp sát tường theo độ vát chéo của khu đất.

Nhung mau thiet ke nha dep anh 7

Do diện tích hạn chế, tầng hai của gia đình là các phòng ngủ. Tầng ba là nhà tắm và sân vườn.

Nhung mau thiet ke nha dep anh 8

Lối lên phòng tắm từ các phòng ngủ nhỏ.

Nhung mau thiet ke nha dep anh 9

Tầng ba của ngôi nhà được thiết kế những cửa vòm như cabin tàu điện.

Nhung mau thiet ke nha dep anh 10

Phòng tắm nằm riêng một chỗ, được đục thủng một khoảng tường để lắp kính lấy sáng.

Nhung mau thiet ke nha dep anh 11

Phòng ngủ phụ của gia đình.

Nhung mau thiet ke nha dep anh 12

Phòng thư giãn, đọc sách có cửa hình tam giác mở ra sân thượng.

Nhung mau thiet ke nha dep anh 13

Khoảng sân nhỏ xinh của ngôi nhà.

Tổ ấm ngập ánh sáng của anh kiến trúc sư trẻ ở Tây Ninh

Sau khi tham khảo ý kiến của gia đình, anh kiến trúc sư trẻ đã tự mình thiết kế nên 1 không gian nhiệt đới gần gũi thiên nhiên với 2 tỷ đồng.

Quang Dam và Phương Linh

Bạn có thể quan tâm