![]() |
|
Dinh thự Casa Kwantes được thiết kế bởi nhóm kiến trúc sư của hãng MVRDV. Nằm ở phía Tây Rotterdam, Hà Lan, Casa Kwantes có diện tích 480 m2.
|
![]() |
|
Từ ngoài vào, bức tường gạch cùng lối vào hun hút mang lại cảm nhận về một căn nhà tăm tối, khép kín của những người ẩn dật. Nhưng không gian bên trong lại hoàn toàn ngược lại với cảm nhận đó. |
![]() |
|
Bước vào bên trong là một không gian mở đầy ánh sáng. Casa Kwantes được thiết kế theo yêu cầu về một dinh thự kín đáo riêng tư nhưng vẫn tận dụng được tối đa ánh sáng tự nhiên và không gian sống mở.
|
![]() |
|
Dinh thự quay về hướng nam với hệ thống cửa cong bao quanh một cây olive. |
![]() |
|
Phía sau cây olive là phòng khách với hệ thống "tủ gỗ" che đi các công trình phụ dẫn tới cửa, tầng hầm, nhà vệ sinh, tủ bếp và phòng ăn. Sàn nhà nối liền từ trong ra ngoài tạo thành sân chơi - không gian lý tưởng để tổ chức tiệc BBQ. |
![]() |
|
Hệ thống công trình phụ ẩn sau "tủ gỗ". |
![]() |
|
Casa Kwantes được trang bị hệ thống bơm nhiệt mặt đất, chuyển đổi nhiệt và mái năng lượng mặt trời. Các tấm năng lượng mặt trời giúp bù năng lượng bị mất do thiết kế cửa kính, đồng thời cung cấp năng lượng chạy các thiết bị điện trong nhà.
|
![]() |
|
Thiết kế mở giúp căn nhà luôn ngập tràn ánh nắng tự nhiên. Còn vào mùa hè, thiết kế cong tạo ra bóng râm hợp lý để không bị quá chói nắng. |
![]() |
|
Căn nhà được thiết kế với gam màu kem chủ đạo và ứng dụng lối kiến trúc những năm 1930 kết hợp phong cách đương đại. |
![]() |
|
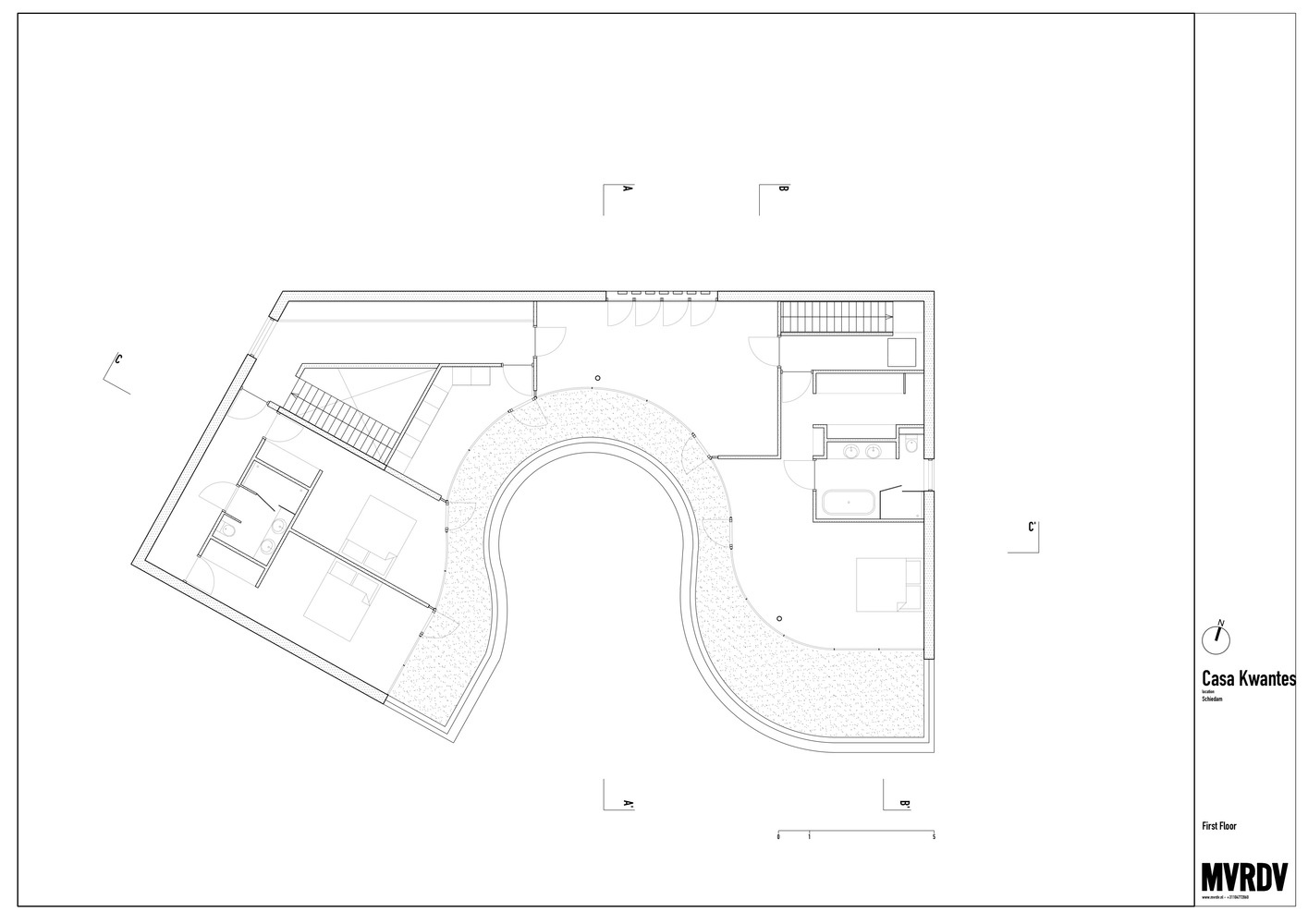
Tương tự tầng 1, hệ thống "tủ" của tầng 2 cũng che đi các công trình chức năng của căn nhà. |
![]() |
|
Tầng 1. |
![]() |
|
Thiết kế tầng 1. |
![]() |
|
Thiết kế tầng 2. |












