Kinh doanh
Căn nhà tre độc đáo trong hẻm Sài Gòn
- Thứ sáu, 16/6/2017 08:53 (GMT+7)
- 08:53 16/6/2017
Các kiến trúc sư mong muốn tạo ra một không gian sống thoải mái, gần gũi với thiên nhiên ngay trong những con hẻm chật chội tại các thành phố lớn.
 |
| Công trình nằm trong một con hẻm thuộc quận 1, TP.HCM. |
 |
| Nằm trong loạt dự án thiết kế "nhà cây" của VTN Architect, công trình lấy ý tưởng chủ đạo từ cây tre. |
 |
| Diện tích nền của công trình là 60,72 m2 ... |
 |
| ... bao gồm 5 tầng. |
 |
| Mặt tiền công trình tạo cảm giác tách biệt so với không gian con hẻm vốn thiếu đi màu xanh thiên nhiên. |
 |
| Phòng khách của căn nhà nằm trên tầng hai, được bài trí đơn giản, mộc mạc đúng như tre, loài cây tạo cảm hứng thiết kế chủ đạo. |
 |
| Bàn ăn cũng được làm bằng mây tre. |
 |
| Phòng ngủ chiếm gần như toàn bộ không gian tầng bốn công trình, tạo cảm giác rộng rãi, thoáng đãng và không kém phần sang trọng. |
 |
| Phòng tắm độc đáo "nửa kín nửa hở", gần gũi với thiên nhiên nhưng vẫn đảm bảo tính riêng tư. |
 |
| Tầng năm của căn nhà là khoảng không gian ngoài trời với bể bơi nhỏ. |
 |
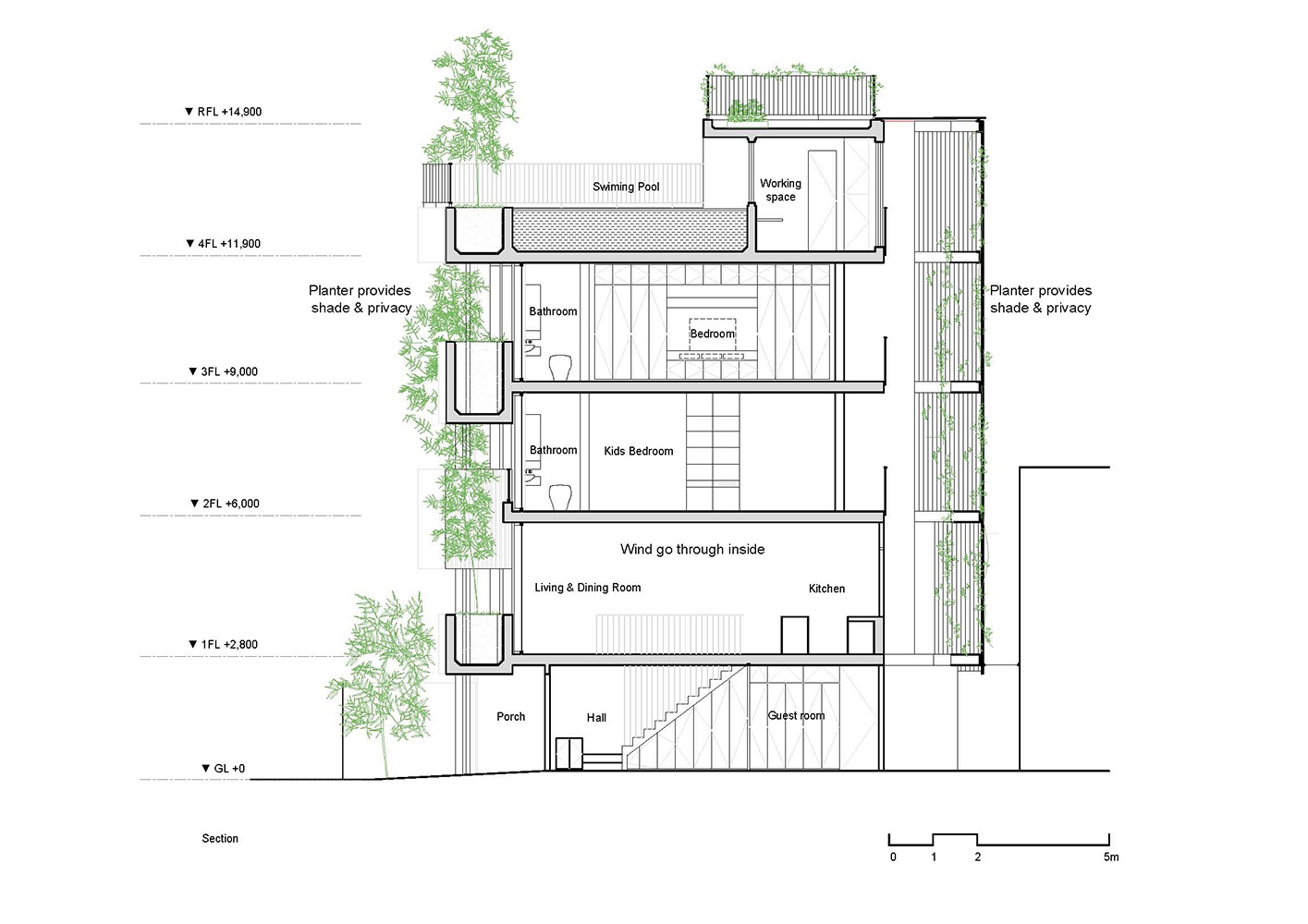
| Mặt cắt ngang công trình. |
căn nhà đẹp lấy ý tưởng từ tre
nhà đẹp
thiết kế
nội thất