![]() |
| Căn nhà mang dáng chữ A độc đáo nằm trên diện tích đất 111 m2 tại Đồng Hới, Quảng Bình. |
![]() |
| Công trình được thiết kế bởi RÂU ARCH. |
![]() |
| Không gian thoáng đãng, hài hòa với thiên nhiên xung quanh. |
![]() |
| Phòng khách của căn nhà có nhiều lối thông với không gian sân trước. |
![]() |
| Nhờ sử dụng nhiều cửa lớn cùng gạch lỗ, căn phòng lấy ánh sáng tự nhiên rất tốt. |
![]() |
| Họa tiết trang trí độc đáo được kiến trúc sư sử dụng lặp lại nhiều lần trong công trình. |
![]() |
| Chiếc kệ TV kiêm nhiệm vụ bình phong ngăn cách bếp và phòng khách. |
![]() |
| Do sử dụng tầng lửng nên trần không gian sinh hoạt chính rất cao và thoáng. |
![]() |
| Các mảng cây xanh được đặt len lỏi trong từng góc nhỏ căn nhà, giúp điều hòa không khí và chắn bụi. |
![]() |
| Tông màu chính trong thiết kế công trình là trắng và nâu gỗ. |
![]() |
| Bếp không cầu kỳ, tối giản. |
![]() |
| Cầu thang sử dụng kính thay vì song gỗ hoặc sắt, khiến không gian thoáng đãng hơn, tầm mắt không bị 'sạn'. |
![]() |
| Phòng ngủ với "giường công chúa" mang cảm giác phòng nghỉ dưỡng cao cấp. |
![]() |
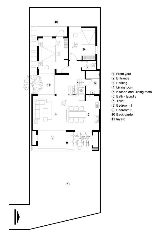
| Mặt bằng tầng một công trình. |













