![]() |
| Căn nhà nằm trong một con hẻm tại quận 3, TP.HCM. |
![]() |
| Công trình được thiết kế bởi Time Architects. |
![]() |
| Nằm trên diện tích nền khoảng 100 m2, gồm 5 tầng lầu. |
![]() |
| Công trình mang lối thiết kế không gian lớn chứa nhiều không gian nhỏ. |
![]() |
| Nhằm phục vụ tốt hơn nhu cầu sử dụng đa dạng của nhiều thế hệ thành viên trong gia đình. |
![]() |
| Phòng ngủ của thành viên lớn tuổi trong nhà mang nét cổ kính, mộc mạc. |
![]() |
| Các không gian khác nhau trong nhà dù có khác biệt về tông thiết kế nhưng vẫn được kết nối với nhau liền mạch. |
![]() |
| Bước vào không gian sinh hoạt chính, tông thiết kế đã có nhiều khác biệt. |
![]() |
| Căn bếp giản dị của công trình. |
![]() |
| Giữa nhà có giếng trời lớn thông tầng, giúp lấy ánh sáng tự nhiên. |
![]() |
| Một phòng ngủ mang nét thiết kế độc đáo với công trình phụ đi kèm. |
![]() |
| Tay nắm cầu thang được thi công bằng thép thô tạo sự khác biệt. |
![]() |
| Chi tiết đường song song lặp lại rất nhiều tại không gian tầng thượng. |
![]() |
| Đây cũng là không gian thoáng nhất trong công trình. |
![]() |
| Chủ đầu tư mong muốn căn nhà sẽ kết nối đại gia đình với nhau trong một không gian sống hài hòa. |
![]() |
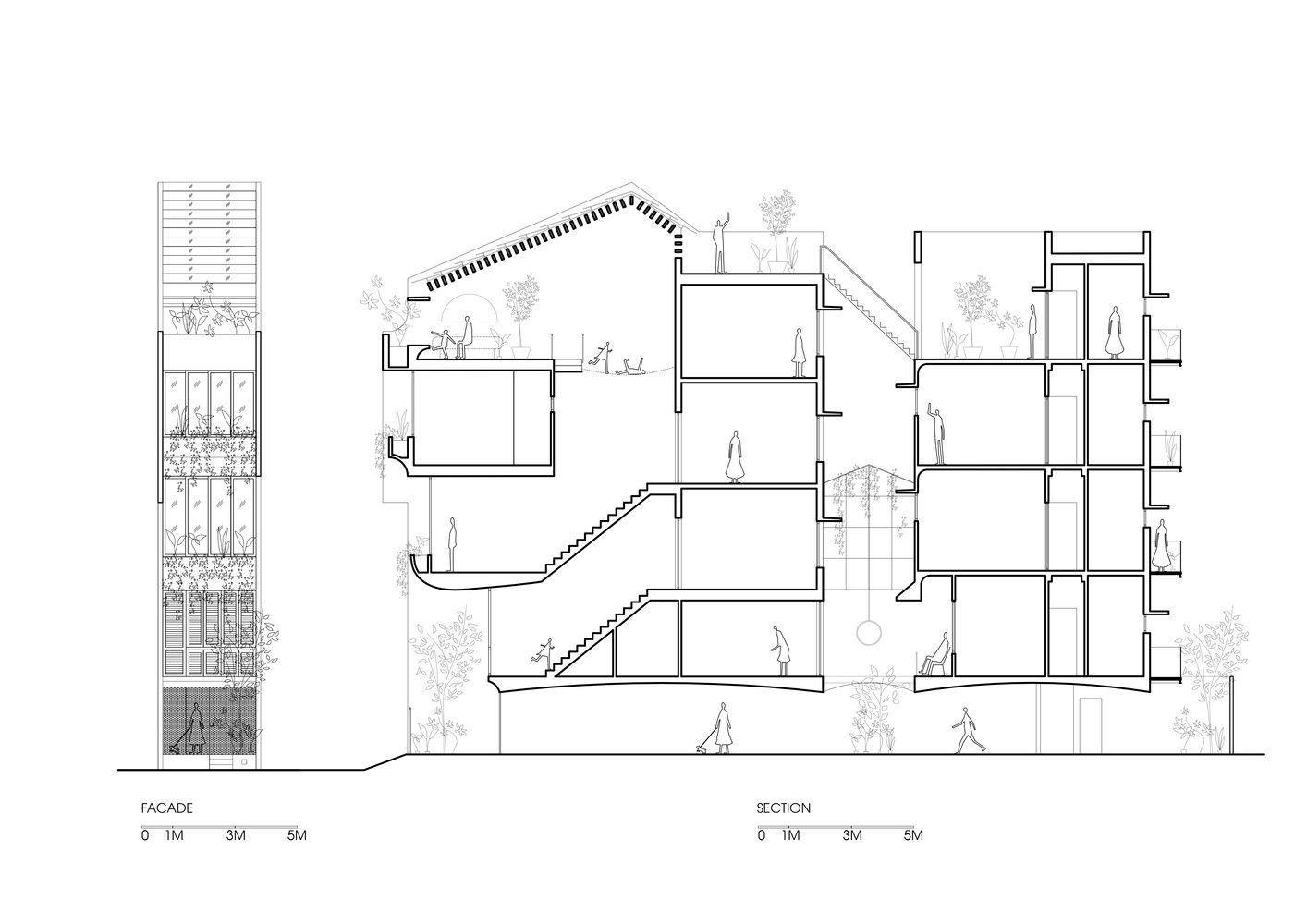
| Mặt cắt ngang công trình. |















