![]() |
| Khu vực cửa chính của căn hộ 110 m2 được cải tạọ thành sảnh chung cho 3 căn mini. |
![]() |
| Khu sảnh có diện tích khá rộng rãi với 3 cửa dẫn vào 3 căn hộ nhỏ. |
![]() |
| Căn hộ mini đầu tiên với không gian sinh hoạt bao gồm phòng khách và phòng bếp cùng một tầng lửng. |
![]() |
| Cửa sổ lớn giúp nhà đón ánh sáng tự nhiên, kết hợp cùng tông màu trắng khiến không gian trở nên rộng hơn so với thực tế. |
![]() |
| Tầng lửng được sơn màu nổi giúp tách biệt khỏi không gian phòng khách và bếp, điều cần thiết để hạn chế việc sử dụng tường trong không gian hẹp. |
![]() |
| Diện tích không nhiều nhưng có thể thấy căn hộ mini này không thiếu tiện ích quan trọng nào, phía bên trái bếp là cửa vào công trình phụ. |
![]() |
| Bếp ăn đầy đủ trang thiết bị tối thiểu cùng chạn bát đĩa được thiết kế đơn giản, tinh tế để làm thoáng không gian. |
![]() |
| Phòng ngủ của căn hộ nằm ngay phía dưới tầng lửng, đi kèm tủ đồ và khu vực thay đồ. |
![]() |
| Lối vào căn hộ số 2 khá hẹp do kết cấu có sẵn của căn hộ 110 m2 trước khi cải tạo. |
![]() |
| Không gian đầu tiên khi bước vào căn hộ số 2 là căn bếp sơn màu neon. |
![]() |
| Các kiến trúc sư tiếp tục sử dụng màu sắc để phân tách không gian. |
![]() |
| Thay vì bếp trải dài như căn đầu tiên, bếp căn hộ số 2 có dạng chữ U với một quầy bar kiêm bàn ăn. |
![]() |
| Cạnh căn bếp là cầu thang lên tầng lửng.
Nội thất phòng khách được hướng ra cửa sổ để lấy sáng. Căn hộ số 2 là căn hộ có diện tích nhỏ nhất trong 3 căn hộ mini. |
![]() |
| Diện tích không lớn nhưng phòng khách căn hộ số 2 vẫn giúp chủ nhân tiếp đón 2-3 vị khách cùng lúc. |
![]() |
| Căn hộ số 3 với lối vào rộng rãi, sơn xanh tách biệt. |
![]() |
| Tủ đồ cũng được thiết kế âm tường tại khu vực này. |
![]() |
| Không gian căn hộ số 3 được thiết kế hài hòa, tầng lửng đóng vai trò là phòng ngủ. |
![]() |
| Đây là căn hộ có không gian phòng khách và phòng bếp rộng rãi nhất trong ba căn. |
![]() |
| Khu vực cửa sổ với cánh tủ giả thông minh có thể đẩy vào để làm bàn làm việc khi cần thiết. |
![]() |
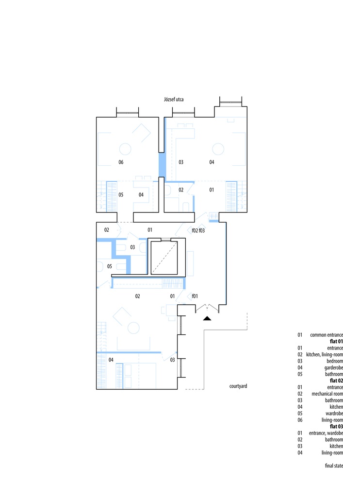
| Mặt bằng căn hộ 110 m2 chia làm 3 căn mini. |



















