![]() |
| Công trình được thiết kế bởi MM++ Architects. |
![]() |
| Căn nhà nằm trên diện tích đất 247 m2, với chiều rộng 13 m, chiều sâu 19 m. |
![]() |
| Mặt tiền căn nhà sở hữu một hiên lớn ngoài trời, che nắng bởi phần mái vươn ra. |
![]() |
| Sàn tầng một được thiết kế nâng cao hơn so với mặt sân trước. |
![]() |
| Phần hiên nhà trên tầng hai đón ánh sáng tự nhiên rất tốt. |
![]() |
| Mặt trước nhà dùng gần như hoàn toàn cửa kính để đón ánh sáng tự nhiên. |
![]() |
| Nhờ đó cây lớn giữa nhà có thể sinh trưởng tốt, tạo khoảng xanh cho không gian. |
![]() |
| Tiểu cảnh cây và bể nước nhỏ là tâm điểm của không gian tầng một. |
![]() |
| Bàn ăn lớn phục vụ cùng lúc nhiều người dùng bữa. |
![]() |
| Phần bậc thang liền kệ TV là thiết kế độc đáo thường gặp trong các công trình biệt thự tại TP.HCM thời gian gần đây. |
![]() |
| Giếng trời giúp lấy thêm sáng cho căn nhà từ trên cao. |
![]() |
| Hành lang với vách kính độc đáo. |
![]() |
| Công trình có 3 phòng ngủ, 2 phòng ở tầng 2 và một phòng ngủ chính ở tầng 1. |
![]() |
| Các phòng ngủ trên tầng phục vụ các thành viên nhỏ tuổi trong gia đình. |
![]() |
| Trong khi phòng ngủ lớn ở tầng 1 phục vụ cặp vợ chồng chủ nhân căn nhà. |
![]() |
| Thiết kế độc đáo mang thiên nhiên vào phòng tắm. |
![]() |
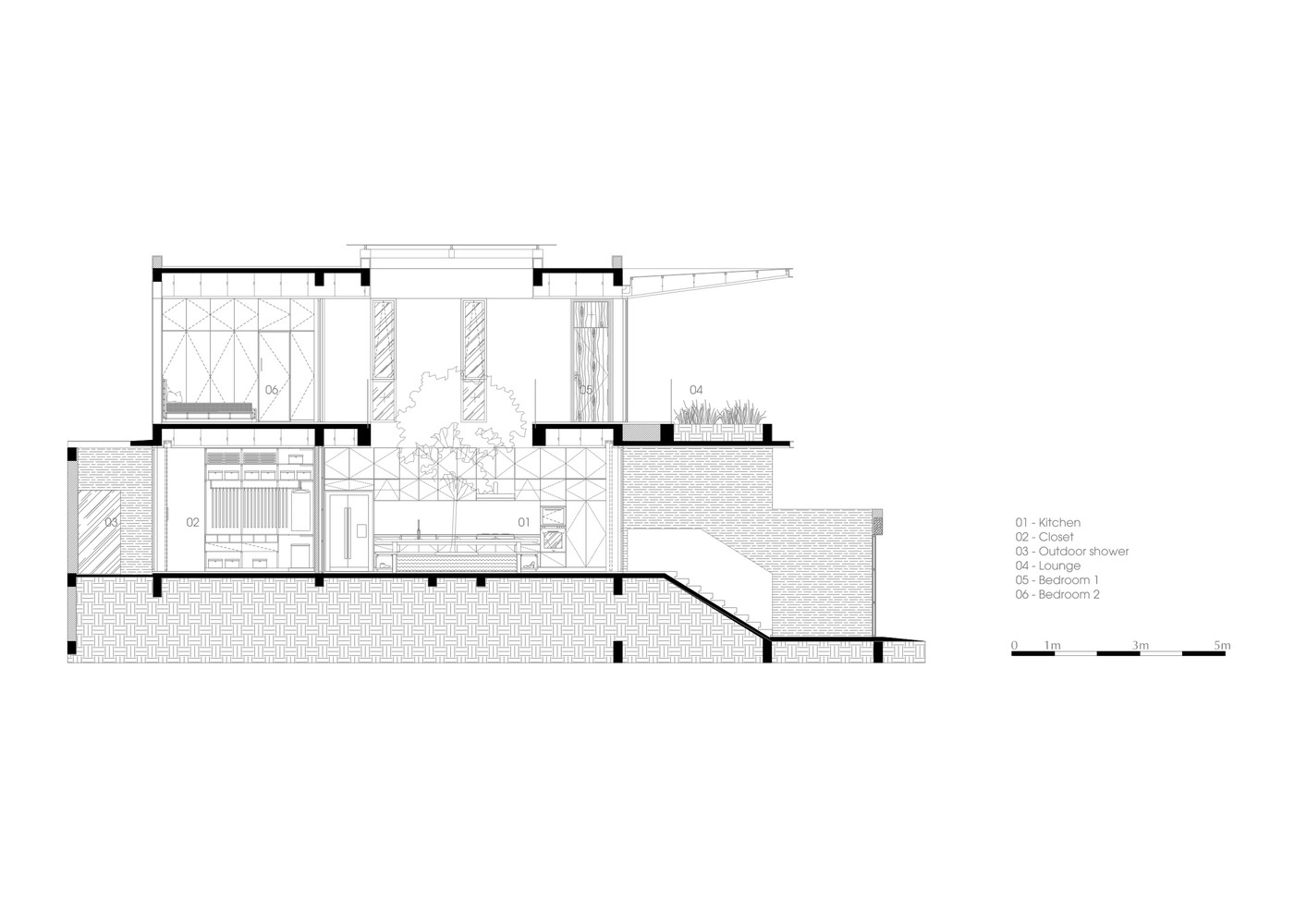
| Mặt cắt ngang công trình. |
















