![]() |
| Căn nhà có địa chỉ tại quận 6, TP.HCM. |
![]() |
| Nằm trên diện tích đất nền 100 m2. |
![]() |
| Căn nhà được thiết kế bởi 23o5studio. |
![]() |
| Công trình có thiết kế đơn giản nhưng phá cách. |
![]() |
| Nhà có 2 phòng ngủ cùng nhiều phòng chức năng. |
![]() |
| Thiết kế sàn gỗ độc đáo giúp ánh sáng xuống được tới tầng hai. |
![]() |
| Công trình sử dụng rất nhiều vật liệu gỗ giúp mang lại cảm giác ấm áp, làm hài hòa không gian nhiều màu bê tông. |
![]() |
| Theo các kiến trúc sư, 2 từ khóa cho công trình chính là "ánh sáng" và "khoảng trống". |
![]() |
| Không gian tầng ba rất thoáng, phục vụ chủ nhân làm việc, vốn yêu cầu sự sáng tạo. |
![]() |
| Ban ngày, không gian làm việc đón rất nhiều ánh sáng tự nhiên. |
![]() |
| Thiết kế cũng tạo sự yên tĩnh cần thiết cho khu vực làm việc. |
![]() |
| Công trình phụ nhỏ phía sau bàn làm việc. |
![]() |
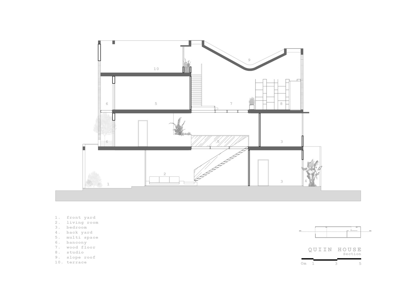
| Mặt cắt ngang công trình. |












