![]() |
| Công trình được thiết kế bởi K.A Studio. |
![]() |
| Diện tích nền là 240 m2. |
![]() |
| Phòng khách liền với bếp ở tầng 1. |
![]() ![]() |
| Không gian phòng khách được thiết kế hài hòa, đẹp cả trong điều kiện ánh sáng ban ngày và ban đêm. |
![]() |
| Bàn ăn dài phục vụ được những bữa tiệc nhỏ 6-8 người. |
![]() |
| Bếp được thiết kế thoáng, tối giản. |
![]() |
| Phòng làm việc với hai bên là kính khung thép giúp lấy sáng rất tốt. Kính khung thép là lựa chọn thiết kế rất phổ biến trong giới kiến trúc kể từ năm 2016 trở lại đây. |
![]() |
| Bàn làm việc nhìn ra phòng khách và xa hơn là vườn cây. |
![]() |
| Trong nhà có rất nhiều điểm để chủ nhân hòa mình với thiên nhiên. |
![]() |
| Cầu thang mảnh, vật liệu chính là thép và gỗ. |
![]() |
| Phòng ngủ chính của công trình. |
![]() |
| Đi kèm là khu vực thay đồ sang trọng. |
![]() |
| Căn nhà còn có 3 phòng ngủ nhỏ hơn. |
![]() |
| Công trình phụ chuẩn 5 sao của căn biệt thự. |
![]() |
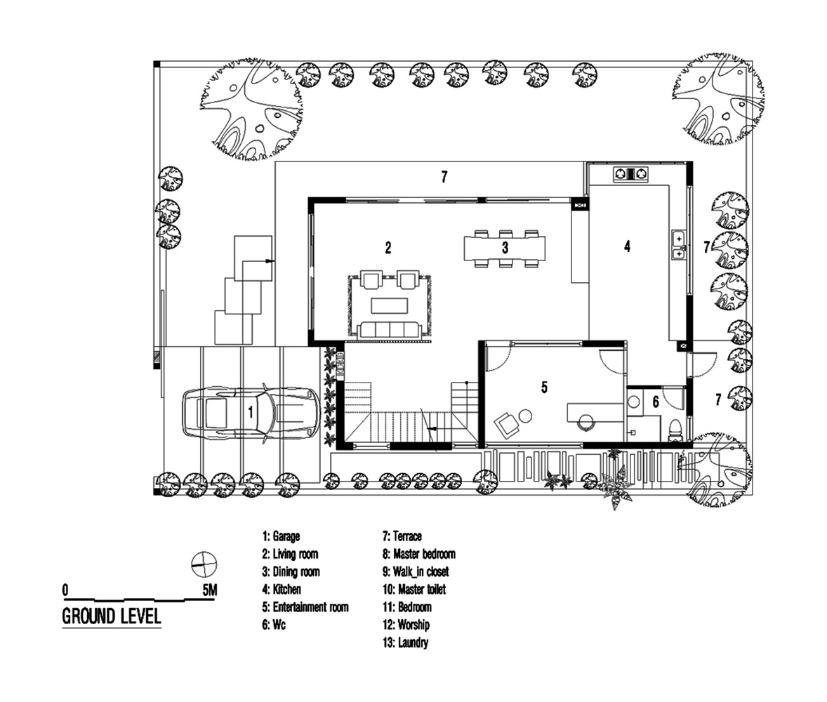
| Mặt bằng tầng 1 công trình. |















