Kinh doanh
Bất động sản
Căn nhà 450 triệu đồng thiết kế độc đáo ở Bình Dương
- Thứ ba, 3/10/2017 06:58 (GMT+7)
- 06:58 3/10/2017
Công trình được thiết kế độc đáo nằm nổi bật giữa bốn bề là nhà trọ cho công nhân gần một khu công nghiệp tại huyện Lái Thiêu, Thuận An, Bình Dương.
 |
| Căn nhà gồm 2 tầng. Chủ nhân hiện sống một mình nhưng công trình được thiết kế để phục vụ cho gia đình của anh trong tương lai. |
 |
| Công trình gần như bao quanh bởi nhà trọ dành cho công nhân. |
 |
| Do yêu cầu của chủ nhân căn hộ về một căn nhà không quá đắt, phù hợp với thu nhập để không tạo gánh nặng tài chính, công trình được thiết kế sử dụng những vật liệu dễ tìm nhưng không kém phần tinh tế. |
 |
| Phòng khách. |
 |
| Đi liền với đó là không gian bếp. |
 |
| Tông màu chính là xám bê-tông, trắng và màu gỗ. |
 |
| Theo tiết lộ, tổng chi phí để xây dựng công trình khoảng 450 triệu đồng. |
 |
| Do phương pháp thi công mới mẻ, thợ xây tại địa phương đã gặp không ít khó khăn. |
 |
| Công trình có nhiều góc tinh tế dù chi phí xây dựng không cao. |
 |
| Cầu thang chính của căn nhà với giếng trời lấy sáng bên trên. Căn nhà có hai phòng ngủ trên tầng hai, hai công trình phụ chia đều ở hai tầng. Theo KTS, căn nhà được xây để trong 15-20 năm tới, khi chủ đầu tư có con nhỏ thì nhu cầu của các thành viên trong gia đình vẫn được phục vụ đầy đủ, dù diện tích sàn không lớn.
|
 |
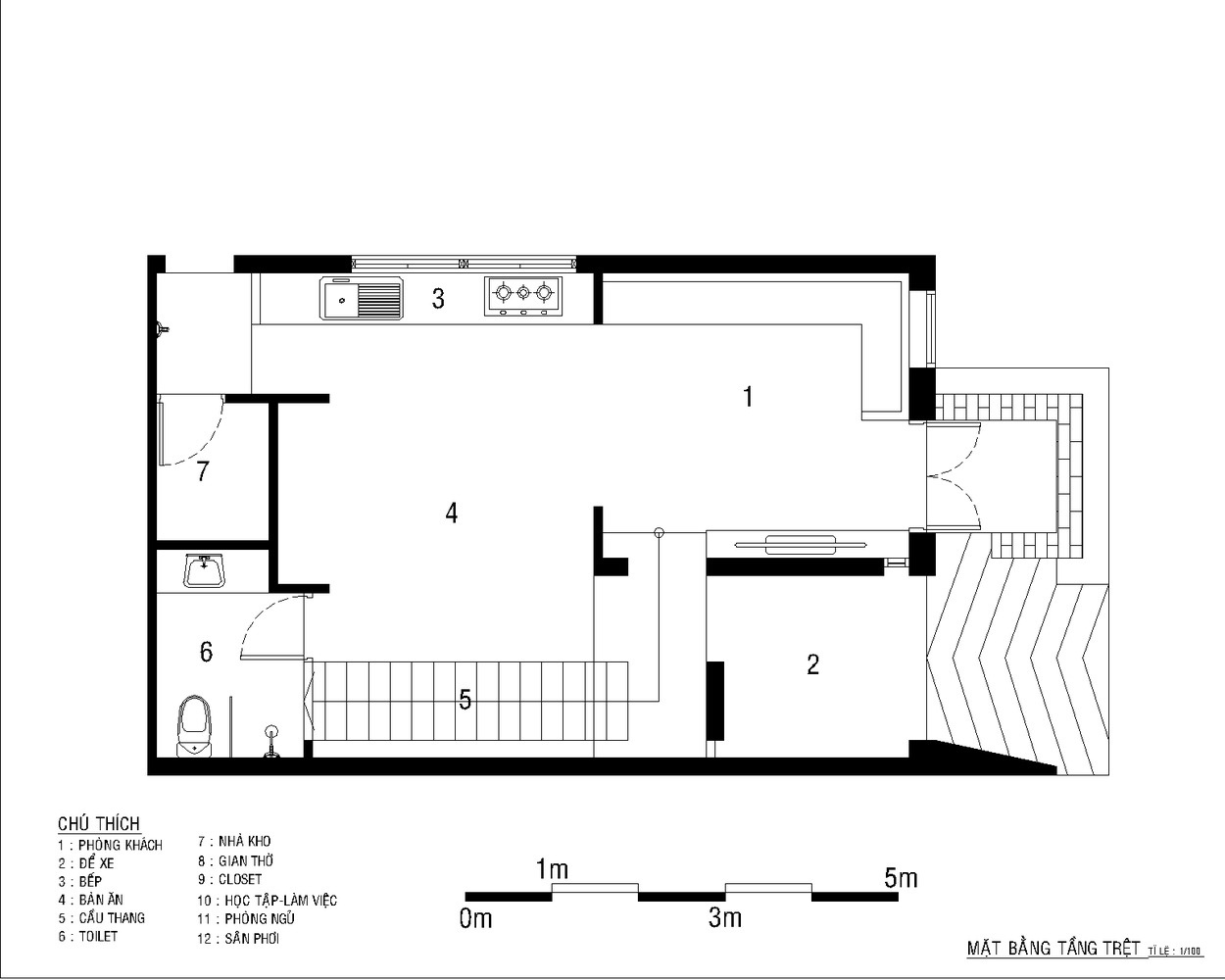
| Mặt bằng tầng một công trình. |
nhà phố thiết kế rẻ đẹp
Bình Dương
nhà đẹp
thiết kế
nội thất