![]() |
| Căn nhà tọa lạc tại quận 7, TP.HCM, được thiết kế bởi MM++ architects. |
![]() |
| Diện tích đất nền của công trình là 225 m2, gần như vuông tuyệt đối, mỗi chiều dài 15 m. |
![]() |
| Sân trước để được ôtô. |
![]() |
| Tầng một của công trình hạn chế tối đa việc sử dụng tường. |
![]() |
| Thay vào đó là nhiều cửa kính lớn dạng trượt. |
![]() |
| Thiết kế này giúp công trình làm mát một cách tự nhiên. |
![]() |
| Nhờ sử dụng nhiều cửa kính lớn, không gian sinh hoạt mang cảm giác gần gũi với thiên nhiên. |
![]() |
| Cầu thang lên tầng hai. |
![]() |
| Công trình sử dụng nhiều chi tiết gỗ. |
![]() |
| Tầng hai là không gian xây dựng chính của căn nhà, bao gồm hai phòng ngủ và một công trình phụ. |
![]() |
| Cầu thang xoắn ốc khác biệt với cầu thang lên từ tầng một. |
![]() |
| Tầng ba với vườn cây ngoài trời. |
![]() |
| Phòng ngủ trên tầng ba. |
![]() |
| Phòng ngủ của thành viên nhỏ tuổi trong gia đình. |
![]() |
| Công trình phụ của căn nhà thiết kế đẹp mắt. |
![]() |
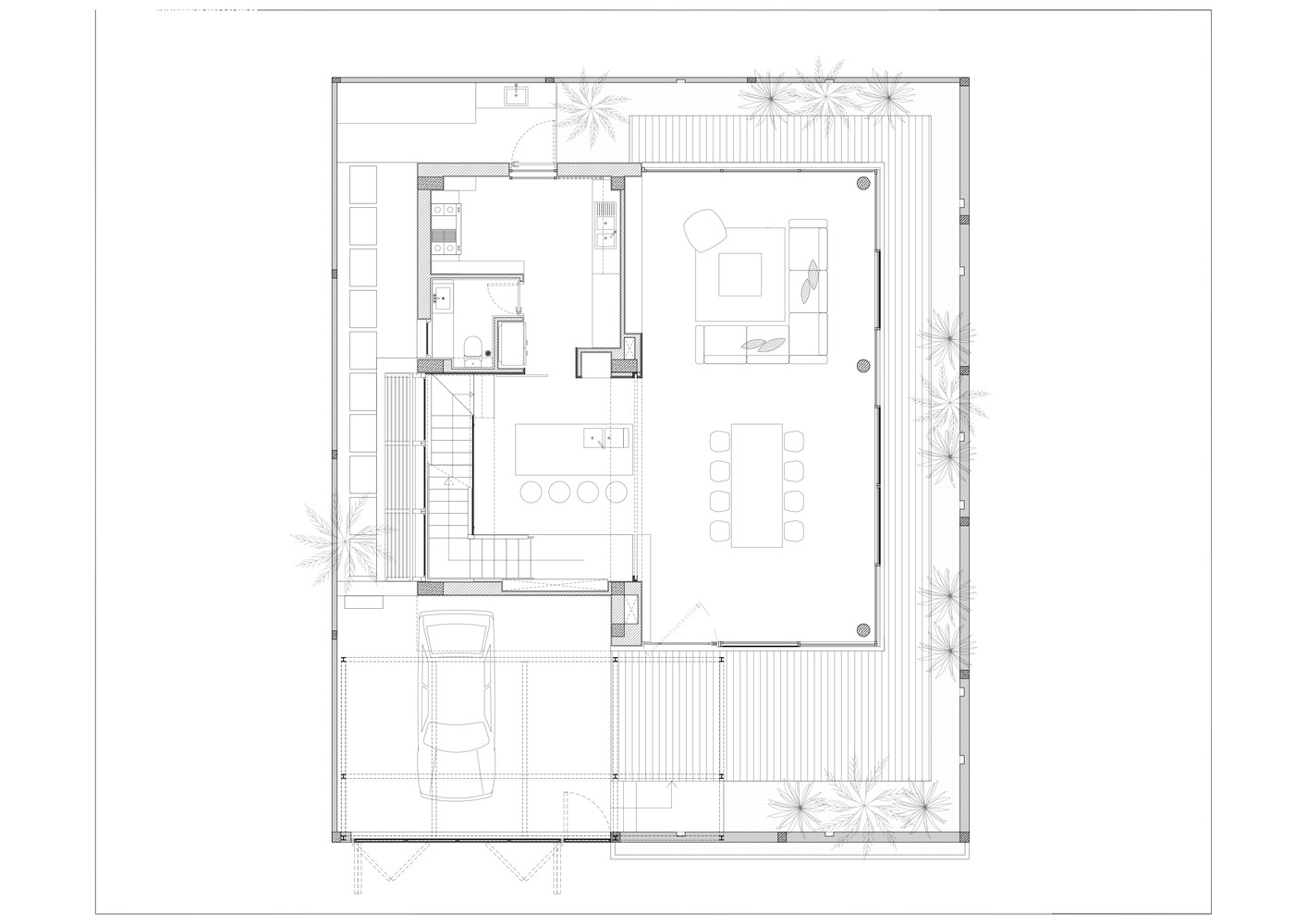
| Mặt bằng tầng một công trình. |















