![]() |
| Diện tích sàn của căn hộ là 70 m2. |
![]() |
| Không gian sinh hoạt chính là bếp - phòng khách - phòng đọc sách. |
![]() |
| Nhờ cửa sổ lớn, căn hộ lấy ánh sáng tự nhiên rất tốt. |
![]() |
| Tông màu trắng giúp không gian cảm giác rộng hơn so với thực tế. |
![]() |
| Khối chi tiết nâng gác xép được thi công gần như hoàn toàn bằng gỗ. |
![]() |
| Một góc làm việc nhỏ dưới gầm gác xép. |
![]() |
| Phần thi công gỗ được để màu thô, nhiều điểm còn thấy vết đinh, tạo cảm giác trẻ trung, gần gũi. |
![]() |
| Lan can gác xép được thiết kế dạng lưới mắt cáo, không làm cản trở tầm nhìn mà vẫn đảm bảo an toàn. |
![]() |
| Giường ngủ được đưa lên gác xép để tận dụng trần cao của căn hộ nhằm tiết kiệm không gian. |
![]() ![]() |
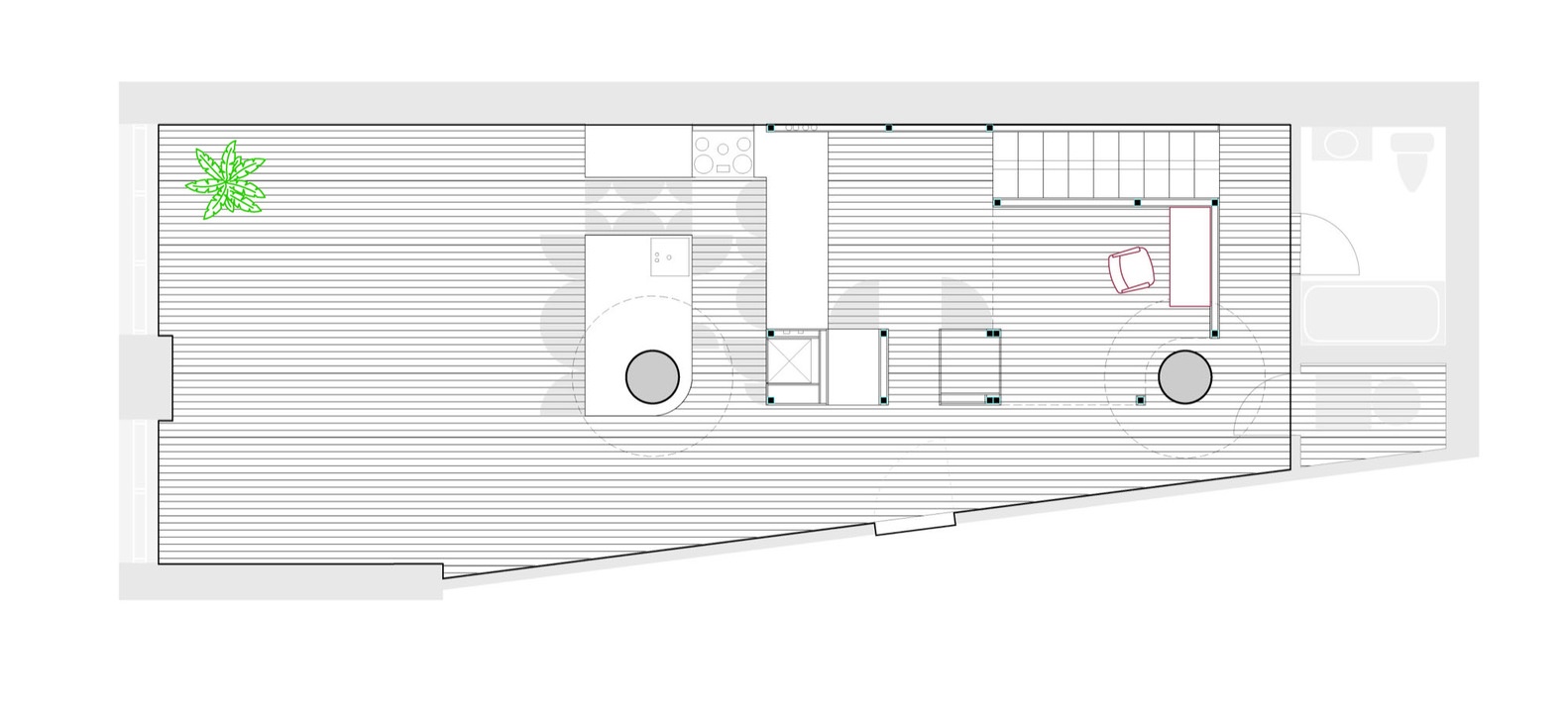
| Mặt bằng căn hộ 70 m2. |










