![]() |
| Căn hộ có diện tích 37 m2, thiết kế cho một người ở. |
![]() ![]() |
| Tông màu trong căn hộ chia làm 3 mảng rõ rệt với sàn gạch hoa, tường trắng và trần bê tông thô. |
![]() |
| Khu vực bếp và bàn ăn được thiết kế nhỏ gọn, áp theo mép tường. Bàn ăn nhỏ phục vụ được từ 1 đến 2 người. |
![]() |
| Khu vực bếp chính được giấu sau lớp cửa trượt. Thiết kế này giúp tách bếp ra khỏi các không gian khác khi cần nấu nướng. Sau quá trình sử dụng, chủ nhân căn hộ chỉ cần trượt cửa để đưa bếp nhập lại không gian ban đầu. |
![]() |
| Phòng ngủ duy nhất của căn hộ với cửa sổ lấy sáng. |
![]() |
| Tương tự bếp, công trình phụ cũng được giấu sau cửa trượt để tiết kiệm không gian. Công trình phụ có diện tích nhỏ nhưng vẫn đầy đủ tiện nghi cơ bản. |
![]() |
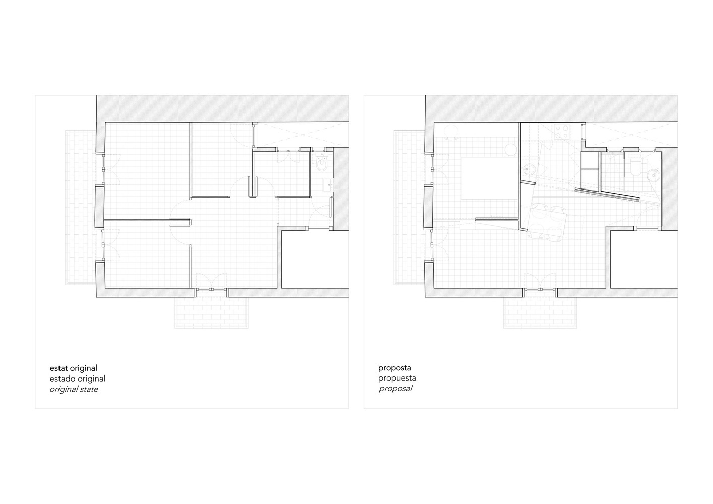
| Mặt bằng căn hộ 37 m2 trước và sau khi cải tạo theo thiết kế mới. |







