![]() |
| Căn hộ có diện tích 131 m2, được thiết kế sang trọng cho một người ở. |
![]() |
| Tông màu phù hợp với chủ nhân là nam giới thành đạt. |
![]() |
| Cửa kính lớn kéo dài từ bếp ra phòng khách giúp không gian sinh hoạt chính của căn hộ có thể nhìn ra toàn cảnh thành phố. |
![]() |
| Phòng khách với sofa cỡ lớn, không hướng về TV như thường thấy mà hướng ra cửa kính. |
![]() |
| Khác với phòng bếp có phần ít chỗ ngồi, không gian phòng khách rất rộng rãi nhằm tiếp đón lượng lớn khách. Cửa kính có hệ thống rèm thả giúp chắn ánh nắng trực tiếp khi cần thiết. |
![]() ![]() |
| Phòng làm việc với cửa xoay độc đáo. |
![]() |
| Tương tự như phòng khách, phòng ngủ của căn hộ có tầm nhìn rất đẹp. |
![]() |
| Phòng ngủ có một bàn làm việc nhỏ. |
![]() |
| Căn hộ chỉ có một phòng ngủ. |
![]() |
| Công trình phụ hiện đại. |
![]() |
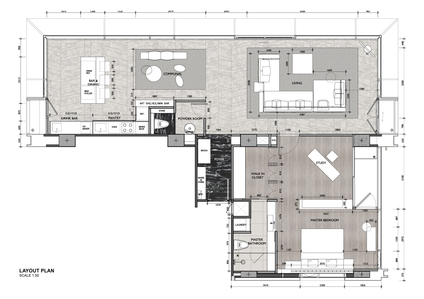
| Mặt bằng căn hộ 131 m2. |











