![]() |
| Căn biệt thự có diện tích đất nền 470 m2, nằm trên con đường tại TP. Vũng Tàu. |
![]() |
| Biệt thự được thiết kế bởi MIA Design Studio, thi công năm 2016. |
![]() |
| Nguyện vọng của chủ đầu tư về một căn nhà tiện nghi nhưng vẫn hòa quyện với thiên nhiên là bài toán đặt ra cho các kiến trúc sư. |
![]() |
| Công trình có tên "nhà ngăn kéo" là do diện tích sinh hoạt được chia thành 3 khu chính, nằm ngang thửa đất như 3 chiếc ngăn kéo. |
![]() |
| Công trình có diện tích xây dựng chỉ chiếm 40%, đồng nghĩa hơn 280 m2 được dành cho sân vườn. |
![]() |
| Sảnh chính hút mắt với bức tường cây xanh. |
![]() |
| Với việc dành phần lớn không gian cho sân vườn, các thành viên trong gia đình luôn được tiếp xúc với thiên nhiên dù ở bất kỳ đâu trong nhà. |
![]() |
| Xen kẽ giữa 3 "ngăn kéo" không gian sinh hoạt là những "ngăn kéo" tiểu cảnh sân vườn. |
![]() |
| Biệt thự sử dụng rất nhiều vật liệu gỗ, tạo cảm giác ấm cúng cho không gian. |
![]() |
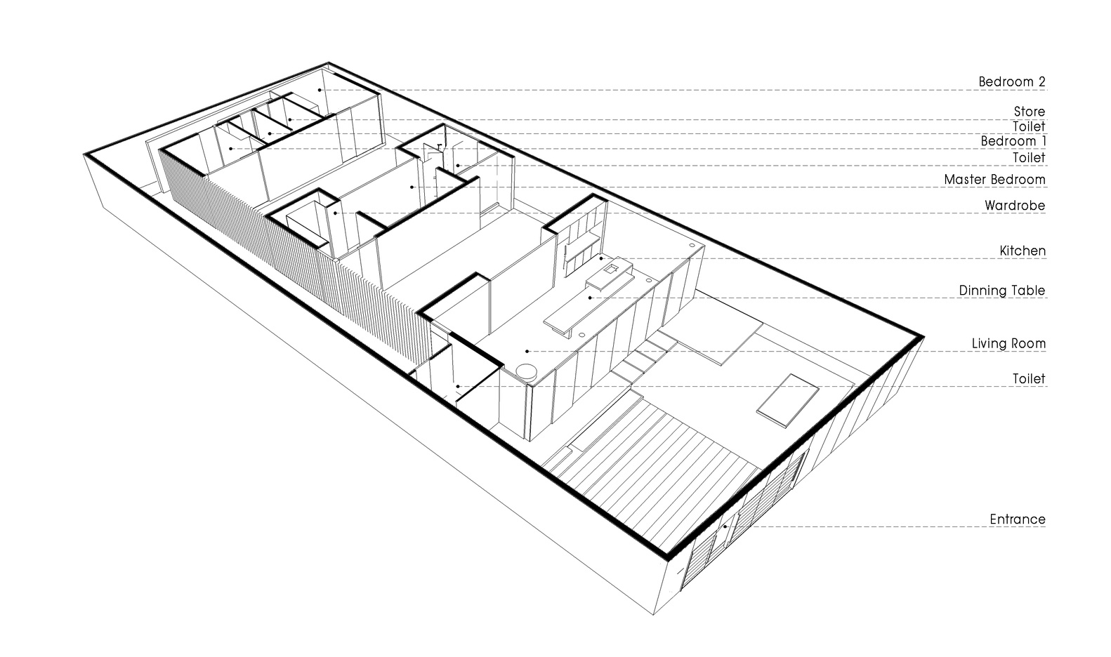
| "Ngăn kéo" đầu tiên của biệt thự bao gồm bếp, bàn ăn và phòng khách. |
![]() |
| Có tới 3 mặt của "ngăn kéo" này tiếp xúc với các khoảng thiên nhiên. |
![]() |
| Căn biệt thự có 3 phòng ngủ, một phòng ngủ lớn và 2 phòng ngủ nhỏ cho các thành viên nhỏ tuổi trong gia đình. |
![]() |
| Ngay cả công trình phụ cũng được thiết kế để đón ánh sáng thiên nhiên mà vẫn đảm bảo tính riêng tư. |
![]() |
| Các kiến trúc sư mong muốn công trình sẽ kết nối thành viên trong gia đình với nhau và kết nối con người với thiên nhiên. |
![]() |
| Mặt bằng biệt thự "3 ngăn kéo". |














