Bạn có thể chuyển sang phiên bản mobile rút gọn của Tri thức trực tuyến nếu mạng chậm. Đóng

Ngôi nhà mộc nhiều cây xanh của gia đình trẻ

Căn nhà tại quận Ngũ Hành Sơn, TP Đà Nẵng mang vẻ đẹp mộc mạc với những món đồ handmade của vợ chồng trẻ đều là kiến trúc sư.

Ngoi nha moc mac nhieu cay xanh anh 1

Công trình được thực hiện bởi các kiến trúc sư của XR Studio nằm trên khu đất với diện tích 210 m2, mặt tiền hướng Tây – Nam, tọa lạc trong khu dân cư với bối cảnh xung quanh là những ngôi nhà 3-4 tầng với mật độ khá thưa thớt.

Ngoi nha moc mac nhieu cay xanh anh 2

Ngôi nhà tạo nên một nơi ở cho gia đình nhỏ 4 thành viên gồm vợ chồng và 2 con nhỏ, yêu cầu đảm bảo tính riêng tư trong công trình đồng thời hòa quyện với nắng, gió và cây xanh. Cùng với đó, các KTS hạn chế việc sử dụng năng lượng trong công trình, đảm bảo tính bền vững và tiết kiệm cho nhu cầu sử dụng lâu dài.

Ngoi nha moc mac nhieu cay xanh anh 3

Vì mảnh đất mặt tiền hướng Tây - Nam khá nóng nên các KTS hạn chế trổ cửa ở hướng này, trồng thêm cây lớn che nắng vào mùa hè oi bức, xây tường hai lớp, ốp đá để giảm bức xạ nhiệt lên bề mặt. Mặt tiền chính chuyển sang hướng Đông - Nam và thêm khoảng sân vườn trải dài để tạo không gian cho cả nhà vui chơi.

Ngoi nha moc mac nhieu cay xanh anh 4

Khoảng thông tầng ở giữa nhà và trên mái, tạo sự đối lưu, thông thoáng cho ngôi nhà. Thêm vào đó là một khoảng lam che nắng bớt cho mặt đứng bên và tạo hiệu ứng ánh sáng.

Ngoi nha moc mac nhieu cay xanh anh 5

Vườn nhỏ trước nhà che nắng cho hướng Tây - Nam, vườn lớn bên nhà là khoảng không gian sinh hoạt chính ngoài trời. Xung quanh nhà còn được bao bọc bởi những hàng trúc cần câu, chuối cảnh. Vì cây xanh tương đối nhiều nên chủ nhà cũng lắp đặt hệ thống tưới riêng.

Ngoi nha moc mac nhieu cay xanh anh 6

Ý tưởng thiết kế dựa trên sự đặc rỗng về hình khối, nhìn bên ngoài thì ngôi nhà như một khối đặc nhưng bên trong chủ yếu không gian mở. Không gian bếp và phòng ăn có màu sắc đen - trắng tương phản với một số điểm nhấn ấn tượng ở cách thiết kế nội thất.

Ngoi nha moc mac nhieu cay xanh anh 7

Đá ốp tường bếp có hoa văn nhiều màu sắc mang đến cảm giác gần gũi, trẻ trung và tươi sáng.

Ngoi nha moc mac nhieu cay xanh anh 8

Bên cạnh đó là sự đề cao về thông gió, chiếu sáng, mảng xanh với tinh thần đơn giản mà tinh tế. Từ đó tạo cảm giác thoải mái dễ chịu để “nhà là nơi để tận hưởng cuộc sống sau những lúc mệt mỏi”.

Ngoi nha moc mac nhieu cay xanh anh 9

Phòng ngủ tràn ngập ánh nắng với gam màu trẻ trung và tầm nhìn thẳng ra vườn cây xanh.

Ngoi nha moc mac nhieu cay xanh anh 10

Vì chủ nhà yêu thích sự mộc mạc nên những đồ handmade được làm từ chất liệu tự nhiên, nhỏ xinh như mây, tre, gỗ,…

Ngoi nha moc mac nhieu cay xanh anh 11

Khu vực vệ sinh được thiết kế với phong cách đơn giản, trang nhã.

Ngoi nha moc mac nhieu cay xanh anh 12

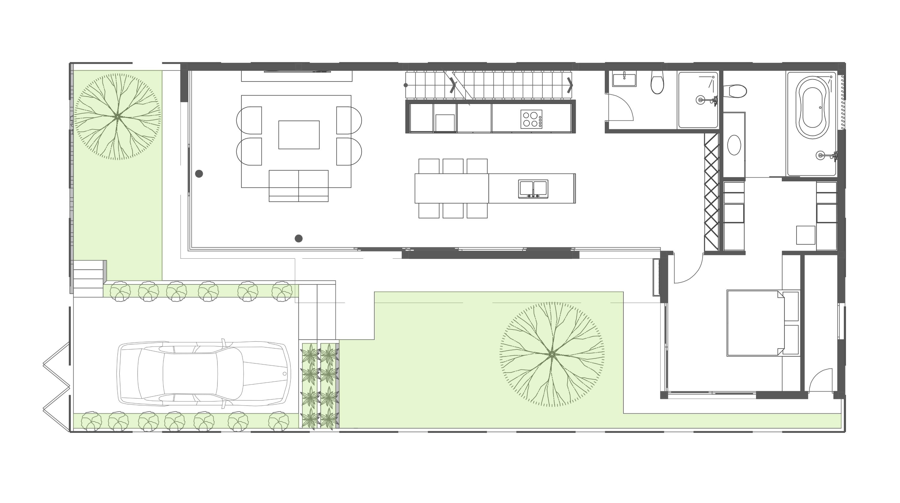
Sơ đồ công trình.

Ngôi nhà lệch tầng có vườn xanh của gia đình 3 thế hệ ở TP.HCM

Nhằm giảm bớt tiếng ồn đô thị, ngôi nhà được bố trí nhiều khoảng xanh mang phong cách nhiệt đới ấn tượng.

Căn hộ duplex với phong cách 'công xưởng' tại Hà Nội

Điểm nhấn đến từ bức tường gạch kết hợp khoảng thông tầng khiến không gian trong nhà không còn cảm giác lạnh lẽo vì tông màu trung tính.

Thuong lai Trung Quoc san lung, go man dia 'sot' gia bat thuong hinh anh

Thương lái Trung Quốc săn lùng, gỗ mán đỉa 'sốt' giá bất thường

0

Việc thương lái Trung Quốc thu mua gỗ mán đỉa với giá lên tới 3 triệu đồng/kg đang khiến người dân đổ xô vào rừng khai thác trái phép. Trước nguy cơ rừng tự nhiên bị xâm hại, tỉnh Quảng Trị đã phát đi cảnh báo và yêu cầu siết chặt quản lý.

Ly do ngan hang o at 'bom von' hinh anh

Lý do ngân hàng ồ ạt 'bơm vốn'

0

Cuối năm là thời điểm “chạy nước rút” của doanh nghiệp khi nhu cầu vốn tăng cao. Để đáp ứng nhu cầu này, ngân hàng đẩy mạnh vốn ra thị trường bằng nhiều gói tín dụng ưu đãi.

Hà Bùi

Ảnh: XR Studio

Bạn có thể quan tâm