Kinh doanh
Bất động sản
Căn nhà phố Sài Gòn với cửa chính có nhiều cách mở
- Thứ ba, 18/7/2017 08:07 (GMT+7)
- 08:07 18/7/2017
Một căn nhà phố tại quận 7, TP.HCM có cửa chính độc đáo khi mở được theo nhiều cách như kiểu truyền thống hoặc gấp lên.
 |
| Căn nhà có diện tích sàn sử dụng là 236 m2. |
|
|
| Khác với các căn nhà phố xung quanh, công trình có cửa chính mở theo cách gấp lên rất độc đáo. |
 |
| Nếu muốn, chủ nhà vẫn có thể mở một cánh như cửa ra vào thông thường. |
 |
| Để có cửa gấp độc đáo, trần tầng một căn nhà được thiết kế rất cao. |
 |
| Ngay cả khi đóng kín, cửa chính vẫn có thể lấy sáng nhờ thiết kế dạng cửa chớp. |
 |
| Mang phong cách thiết kế công nghiệp, căn hộ sử dụng nhiều chi tiết để thô, bê tông mài và sắt sơn đen tạo cảm giác khỏe khoắn. Trong ảnh là phòng khách. |
 |
| Phòng bếp nằm sâu phía trong, lấy sáng nhờ giếng trời. |
 |
| Cầu thang gồm nhiều chi tiết mảnh dẹt, giúp không gian nhìn thoáng hơn. |
 |
| Hành lang với chi tiết sàn có khe hở vừa phá cách, vừa giúp ánh sáng xuống được các tầng dưới. |
 |
| Phòng ngủ không cầu kỳ. |
 |
| Hầu như tất cả phòng trong nhà đều đón ánh sáng tự nhiên rất tốt. |
 |
| Sân thượng với vườn cây nhỏ và bàn cà phê ngoài trời. |
 |
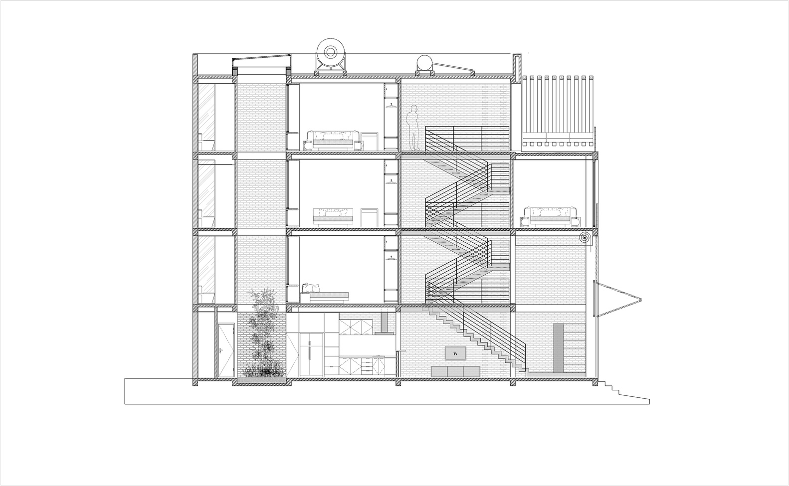
| Mặt cắt ngang công trình. |
nhà phố thiết kế đẹp ở sài gòn
nhà đẹp
thiết kế
nội thất
nhà phố