![]() |
| Loạt căn hộ siêu nhỏ 21 m2 tại Berlin (Đức) được hai đơn vị thiết kế là spamroom và johnpaulcoss thi công năm 2015. |
![]() |
| Các căn hộ được cải tạo nằm trong một tòa nhà cũ có tuổi đời lên tới gần 100 năm. Có thể thấy cửa công trình phụ phía tay phải lối vào. |
![]() |
| Do diện tích hẹp, cầu thang của căn hộ được thiết kế bằng thép để tiết kiệm không gian. |
![]() |
| Bếp ăn được đặt sát vách công trình phụ. |
![]() |
| Dù không rộng rãi nhưng căn bếp vẫn đầy đủ tiện nghi. |
![]() |
![]() |
| Phần lớn diện tích căn hộ được dành cho phòng khách đa năng, không gian sinh hoạt chính của chủ nhân căn hộ. Tông màu chính được sử dụng là màu trắng, giúp căn hộ có cảm giác rộng hơn thực tế. |
![]() |
| Tủ đồ được thiết kế với gương lớn giúp tạo chiều sâu. |
![]() |
| Một bậc gỗ nhỏ giấu trong tủ đồ được sử dụng linh hoạt để lên cầu thang khi có nhu cầu. |
![]() |
| Công trình phụ thiết kế trang nhã với gương lớn nhằm giảm cảm giác bó hẹp. |
![]() |
| Không gian buồng tắm khá rộng rãi. |
![]() |
| Không chỉ hạn chế về diện tích, trần của căn hộ cũng khá thấp khiến chủ nhân không thể đứng ở tầng trên, việc di chuyển khá khó khăn. |
![]() |
| Tuy nhiên diện tích đặt nệm ngủ lại rất lý tưởng. Phần cửa kính trên nóc công trình phụ giúp lấy ánh sáng tự nhiên. |
![]() |
| Theo mô tả của các kiến trúc sư, căn hộ phù hợp với những người không có nhiều kinh phí mà vẫn đảm bảo các yếu tố về nấu nướng, ăn ngủ, sinh hoạt. |
![]() |
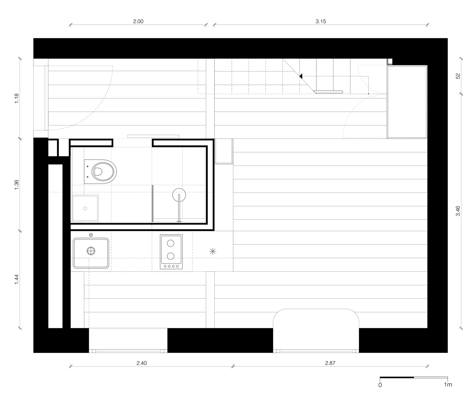
| Mặt bằng căn hộ 21 m2. |














