![]() |
| Căn hộ có diện tích sàn 100 m2. Tông màu chính của thiết kế là trắng, xám bê tông và nâu nhạt của gỗ. |
![]() |
| Phòng khách liền với phòng bếp, được chia tách không gian bằng khu vực bàn ăn quây kính độc đáo. Căn hộ kết hợp hài hòa những chi tiết bê tông thô cùng nội thất gỗ. |
![]() |
| Cửa sổ lớn giúp phòng khách lấy sáng rất tốt. |
![]() |
| Khu vực bếp gần như mang một tông trắng, tách biệt với những khu vực còn lại. Bếp được thiết kế tối giản, đầy đủ những tiện nghi cần thiết. |
![]() |
| Các phòng trong căn hộ được bố trí dọc theo một trục chính. |
![]() |
| Phòng ngủ tinh tế, mang tông trắng. |
![]() |
| Công trình phụ có lối vào khép kín từ phòng ngủ. |
![]() |
| Công trình phụ không quá cầu kỳ nhưng phục vụ tốt nhu cầu của chủ nhân căn hộ. |
![]() |
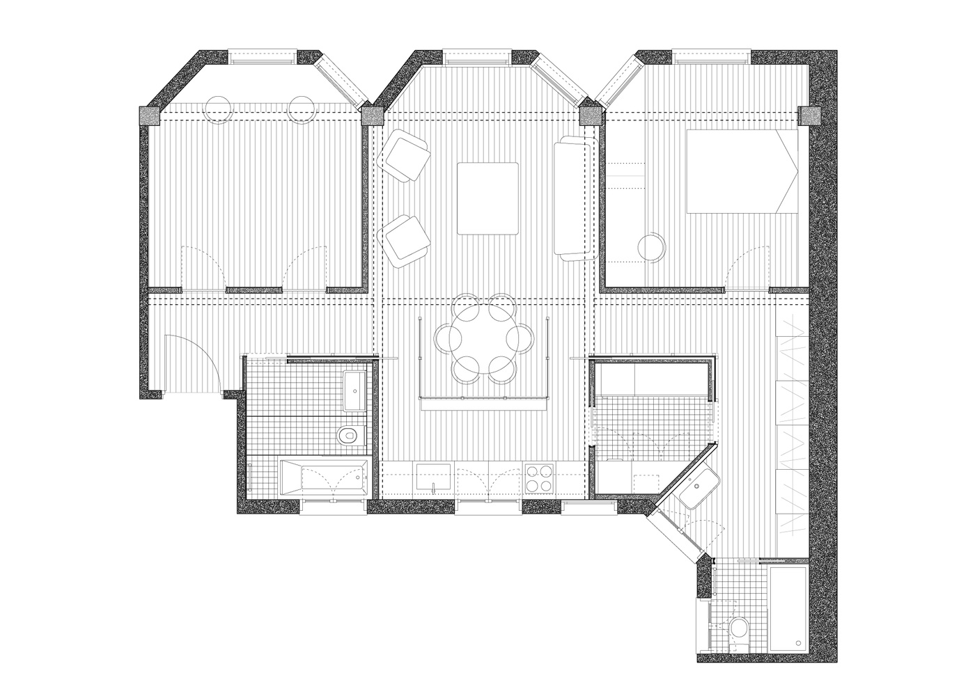
| Mặt bằng căn hộ 100 m2. |








